Horizon/392 Woongarra Scenic Drive

Innes Park, QLD4670
Enquire today for future releases
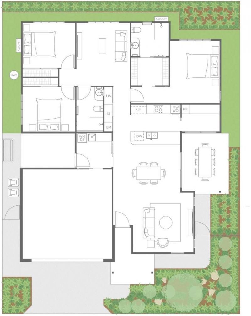
3
Bedroom
Study
2
Bathroom
2
Carpark
Air Conditioning
Established Home

Horizon Premium Design

3 Bed
2 Bath
Study
2 Car
Features
  • Built-ins
  • Dishwasher
  • Entertainment Area
  • Internal Bathroom
  • Internal Laundry
  • Modern Bathroom
  • Remote Garage
  • Storage
  • Study/MPR
Property Listing ID: 8537308
A Drift home is where coastal luxury meets design functionality.

This architecturally designed three bedroom home has been designed to consider aging in place. Challenging any stereotypes, our homes are contemporary, premium residences that are comfortable and accessible. With quality as standard, all finishes and fixtures including appliances have been sourced with consideration. Style, function, durability and usability have been incorporated.

Horizon Features:

  • Open plan living and dining

  • Modern kitchen and bathrooms with smart storage solutions

  • Spacious alfresco entertaining area

  • Generous master bedroom with ensuite and built-in wardrobes

  • Study or multi-purpose room

  • Secure lock-up garage



Celebrating the oceanfront location and fresh sea breezes, the light and airy interiors blend seamlessly with the outdoors creating year-round indoor outdoor living.

Using a range of natural materials and organic colour palettes that complement the coastal location, comfort has never been so stylish. With modern kitchens and bathrooms, smart storage solutions, spacious living areas, easy access and intuitive interior flow, every need has been taken into account.

At Drift, luxury, adventure and individuality seamlessly intertwine offering true resort-style living.

Thoughtfully designed for everyone to enjoy sea views across the community, the future resort-style clubhouse will offer a luxurious connection to the expansive ocean horizons.

There will be a full compliment of facilities to encourage you to connect, relax or simply have fun, including a planned resort-style swimming pool, proposed social hub with yoga, gardens, dog park, parkland and tennis courts.

What are you waiting for? Come home to your shores of adventure. Visit our Sales Gallery today.

Want to compare this Queensland community? https://rebrand.ly/DriftCD

Images are for illustrative purposes only.
*Price is based on owning your home and leasing the land and is correct at the time of printing and subject to change without notice. 31.10.25.



Love this home?

Contact us today!